UITBOUW Jaren 30 woning
White home
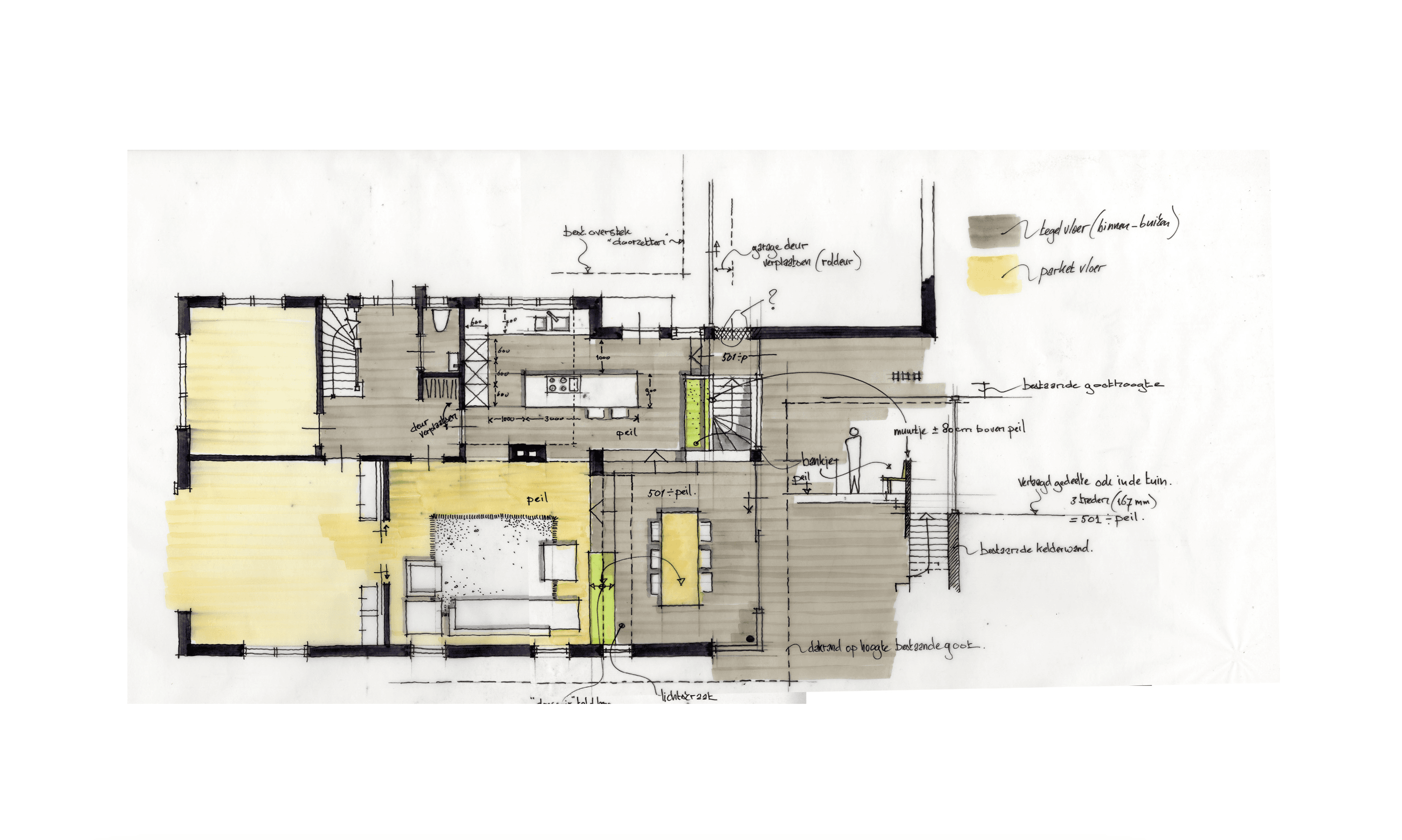
UITBOUW
Is uw woonruimte niet afdoende, dan behoort een uitbouw tot de mogelijkheden. Wij regelen alles voor u, van idee tot realisatie en begeleiden u ook in eventueel noodzakelijke vergunningsaanvragen en andere zaken die geregeld moeten worden. Nieuwsgierig geworden? Aarzel dan niet en neem contact met ons op...
